




LDLM/LDMM/LDMS型系列離線(在線)清灰脈沖袋式除塵器,特別適用于質輕,粒細,粘性粉塵的空氣凈化.離線清灰解決了常規脈沖袋式除塵器存在的"粉塵再附與失控"問題,大大提高了濾袋清灰效果,從而提高過濾速度,節省清灰能耗和延長濾袋壽命,是我們具有特色的專有技術產
服務電話:13091153069(同微信)

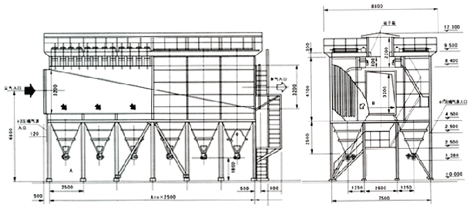
寧夏石嘴山化工廠20T鍋爐配套LDM-3200型系列離線清灰脈沖袋式除塵器

內蒙古集寧4000型瀝青攪拌站配套的LDM-1600型系列離線清灰脈沖袋式除塵器 180KW引風機
LDM-L/M/S型系列離線(在線)清灰脈沖袋式除塵器除塵效率高,能達到99.9%-99.99%,且運行穩定,不受粉塵比電阻的影響,也不受粉塵種類,濃度大小,粒徑大小的限制,能適應工藝工況和負荷大的變化,排放濃度在30mg/Nm3以下甚至可達到5mg/Nm3。處理風量范圍大且靈活,可小到1000m3/h,大到2*106m3/h以上,占地面積也相對較小,當需要維護檢修,更換濾袋時,可隨時分室進行過濾而不停機。其除塵O穩定,可大量回收有用的原料及其他物料,并能在除塵系統管道中噴入石灰石,白云石等可以吸附煙氣中的油霧,瀝青,焦油,然后通過除塵器除去,同時,對濾袋上所積附的未完全吸附的粉塵還可以進一步進行吸附并保護濾袋不被粘附。所以說此款除塵器非常適用于10T鍋爐、15T鍋爐、20T鍋爐、35T鍋爐的除塵工作。
一、簡介
本除塵器是借鑒O外先進技術研制成功的大型脈沖袋式除塵器,是單元組合式結構,可根據用戶需要串接或并接組成整體。除塵器具有O能、低消耗的噴吹裝置,可實現低壓力、短脈沖并適合長濾袋的清灰。除塵器設有預分離導向結構,可使含塵氣體由下部進入,粗顆粒被分離流入灰斗,氣流向上進入濾袋區,可實現順噴,提高清灰效果。
本除塵器是一種除塵效率高、運行可靠、結構緊湊、安裝維修方便的大型除塵設備。
離線清灰解決了常規脈沖袋式除塵器存在的“粉塵再附與失控”問題,大大提高了濾袋清灰效果,從而提高過濾速度,節省清灰能耗和延長濾袋壽命,是我們具有特色的專有技術產品。
本除塵器特別適用于質輕、粒細、粘性粉塵的空氣凈化。分大、中、小三個系列。
二、結構及工作原理
該除塵器由進出口煙道、除塵室、凈氣室、清灰系統及灰斗等組成(見圖4)。工作時廢氣溫度降為130℃,瞬間可達180℃的含塵氣體由布袋除塵器中下部的進口煙道分配后進入各室的灰斗,煙氣由于折流和速度降低等原因使得比較粗、比較重的粉塵顆粒得以沉降,達到預分離的目的。細粉塵隨氣流轉折向上進入除塵室,由于濾袋的過濾作用,粉塵被阻留在濾袋的外表面,過濾后凈氣體由濾袋內部進入各單元的凈氣室,并匯合于出口煙道"經引風機后通過煙囪排入大氣。
隨著時間推移,粉塵不斷地附著在濾袋上,使濾袋內外壓差增大,增大到設定值時,PLC控制系統發出信號,執行機構開啟脈沖閥用壓縮空氣進行脈沖清灰,以上的各項動作均由PLC可編程控制儀控制。
三、特點
1)氣流渦旋打散及均布裝置
氣流在進入除塵器后,由于截面突變會產生較強的渦旋,渦旋氣流會使剛收下來的粉塵再次以較高速度上揚,這樣不僅增加了濾袋負,同時也會沖刷濾袋并降低濾袋使用壽命。加入氣流渦旋打散及均布裝置后,可很大程度上減少渦旋對濾袋的沖刷,避免袋底相碰,延長濾袋使用壽命。
2)獨立模塊設計
普通的脈沖袋除塵器所有除塵室共用1個或2個灰斗,當某個室檢修時,有大量的冷空氣通過共用的灰斗進入收塵系統,使風機負荷大大增加以至造成風機電動機停機(也就是除塵器停機),進而影響整個燒成系統生產。
而該除塵器的每一個除塵室在操作上相對獨立,在每一個除塵室的進、出口煙道上都設有閥門,使其如同一個獨立的小除塵器,可以將某個除塵室從運行中獨立出來,如同彼此獨立的幾臺小除塵器的并聯,因此可以實現真正意義上的離線清灰,在線維修,使水泥廠能在不停窯的基礎上維修袋除塵器。
3)獨特的清灰系統
該除塵器采用逐行噴吹的方式,可通過噴吹管上開孔孔徑的變化,合理調節壓縮空氣噴吹到袋底的壓力,使其既能清灰徹底,又不損傷除塵布袋。
4)自帶旁路系統
該除塵器在設計中考慮了系統試生產時工況不穩定、上游設備(熱交換器)出現故障時,入口溫度將會超過濾袋的允許使用溫度,為了保護濾袋,在進出口煙道中增設了旁路系統,當出現異常高溫時,進氣閥自動關閉,旁路閥打開,所有超高溫氣體從旁路風道通過,從而可以保護濾袋不被燒損。
5)用于窯頭高溫煙氣處理時,采用耐高溫濾料,濾袋必須采用耐溫超過180℃耐磨蝕性好、抗氧化性能好的濾料。實踐證明,采用經過特殊工藝處理的耐高溫濾料,濾料裁剪采用激光切割,成型好,質量高,其使用效果好、使用壽命長。
6)除塵骨架
袋籠的所有筋線都采用自動點焊而成,橫筋的焊點位于立筋的內表面,并去除毛刺,避免濾袋的損傷。
四、技術性能
| 規格 | 過濾面積(m2) | 濾袋數量(條) | 分組數目 | 處理風量(m3/h) | 過濾風速(m/min) | 脈沖閥個數(個) | 壓氣量(m3/min) | 重量(T) | 布置形式 | |
| 型號 | ||||||||||
| LDML-Ⅰ2160 | 2160 | 1440 | 48 | 259200 | 2 | 48 | 1.1 | 81 | ||
| LDML-Ⅰ2520 | 2520 | 1680 | 56 | 302400 | 2 | 56 | 1.3 | 94 | ||
| LDML-Ⅰ2880 | 2880 | 1920 | 64 | 345600 | 2 | 64 | 1.5 | 107 | ||
| LDML-Ⅰ3240 | 3240 | 2160 | 72 | 388000 | 2 | 72 | 1.65 | 121 | ||
| LDML-Ⅰ3600 | 3600 | 2400 | 80 | 432000 | 2 | 80 | 1.82 | 134 | ||
| LDML-Ⅰ3960 | 3960 | 2640 | 88 | 475200 | 2 | 88 | 2.0 | 148 | ||
| LDML-Ⅰ4350 | 4350 | 2880 | 96 | 518400 | 2 | 96 | 2.2 | 161 | ||
| LDML-Ⅰ4680 | 4680 | 3120 | 104 | 561600 | 2 | 104 | 2.4 | 174 | ||
| LDML-Ⅰ5060 | 5060 | 3360 | 112 | 604800 | 2 | 112 | 2.55 | 188 | ||
| LDML-Ⅰ5400 | 5400 | 3600 | 120 | 64800 | 2 | 120 | 2.72 | 200 | ||
| LDML-Ⅰ5760 | 5760 | 3840 | 128 | 691200 | 2 | 128 | 2.9 | 212 | ||
| LDML-Ⅱ2880 | 2880 | 1440 | 72 | 345600 | 2 | 72 | 1.5 | 102 | ||
| LDML-Ⅱ3360 | 3360 | 1680 | 84 | 403200 | 2 | 64 | 1.75 | 119 | ||
| LDML-Ⅱ3840 | 3840 | 1920 | 96 | 460800 | 2 | 96 | 2.00 | 136 | ||
| LDML-Ⅱ4320 | 4320 | 2160 | 108 | 518400 | 2 | 108 | 2.25 | 152 | ||
| LDML-Ⅱ4800 | 4800 | 2400 | 120 | 576000 | 2 | 120 | 2.50 | 169 | ||
| LDML-Ⅱ5280 | 5280 | 2640 | 132 | 633600 | 2 | 132 | 2.75 | 185 | ||
| LDML-Ⅱ5760 | 5760 | 2880 | 144 | 691200 | 2 | 144 | 3.00 | 202 | ||
| LDML-Ⅱ6240 | 6240 | 3120 | 156 | 748800 | 2 | 156 | 3.25 | 219 | ||
| LDML-Ⅱ6720 | 6720 | 3360 | 168 | 806400 | 2 | 168 | 3.50 | 242 | ||
| LDML-Ⅱ7200 | 7200 | 3600 | 180 | 864000 | 2 | 180 | 3.75 | 252 | ||
| LDML-Ⅱ7680 | 7680 | 3840 | 192 | 921600 | 2 | 192 | 4.00 | 267 | ||
| LDMM225 | 225 | 200 | 5 | 33750 | 2.5 | 10 | 0.20 | 11.4 | 單列 | |
| LDMM270 | 270 | 240 | 6 | 40500 | 2.5 | 12 | 0.24 | 13.1 | ||
| LDMM315 | 315 | 280 | 7 | 47250 | 2.5 | 14 | 0.28 | 15 | ||
| LDMM360 | 360 | 320 | 8 | 54000 | 2.5 | 16 | 0.32 | 17.1 | ||
| LDMM405 | 405 | 360 | 9 | 60750 | 2.5 | 18 | 0.36 | 19.2 | ||
| LDMM450 | 450 | 400 | 10 | 67500 | 2.5 | 20 | 0.40 | 21.1 | ||
| LDMM540 | 540 | 480 | 2×6 | 81000 | 2.5 | 24 | 0.48 | 26.4 | 雙列 | |
| LDMM630 | 630 | 560 | 2×7 | 94500 | 2.5 | 28 | 0.56 | 31.2 | ||
| LDMM720 | 720 | 640 | 2×8 | 108000 | 2.5 | 32 | 0.64 | 34.7 | ||
| LDMM810 | 810 | 720 | 2×9 | 121500 | 2.5 | 36 | 0.72 | 39.5 | ||
| LDMM900 | 900 | 800 | 2×10 | 135000 | 2.5 | 40 | 0.80 | 42.8 | ||
| LDMS50 | 50 | 50 | 5 | 7500 | 2.5 | 5 | 0.05 | 2.5 | 單列 | |
| LDMS60 | 60 | 60 | 6 | 9000 | 2.5 | 6 | 0.06 | 2.8 | ||
| LDMS70 | 70 | 70 | 7 | 10500 | 2.5 | 7 | 0.07 | 3.3 | ||
| LDMS80 | 80 | 80 | 8 | 12000 | 2.5 | 8 | 0.08 | 3.7 | ||
| LDMS90 | 90 | 90 | 9 | 13500 | 2.5 | 9 | 0.09 | 4.1 | ||
| LDMS100 | 100 | 100 | 10 | 15000 | 2.5 | 10 | 0.1 | 4.8 | ||
| LDMS120 | 120 | 120 | 2×6 | 18000 | 2.5 | 12 | 0.12 | 5.9 | 雙列 | |
| LDMS140 | 140 | 140 | 2×7 | 21000 | 2.5 | 14 | 0.14 | 6.9 | ||
| LDMS160 | 160 | 160 | 2×8 | 24000 | 2.5 | 16 | 0.16 | 8.4 | ||
| LDMS180 | 180 | 180 | 2×9 | 27000 | 2.5 | 18 | 0.18 | 8.6 | ||
| LDMS200 | 200 | 200 | 2×10 | 30000 | 2.5 | 20 | 0.20 | 9.7 | ||
